Élégant Appartement 3 Pièces à Épinay-sur-Seine - Un Havre de Paix au Dernier Étage
EPINAY SUR SEINE 93800
265 000 € *
* Honoraires à la charge du vendeur
Proposé par votre agence :
9 rue Lacepède
93800 EPINAY SUR SEINE
Réf : 1242
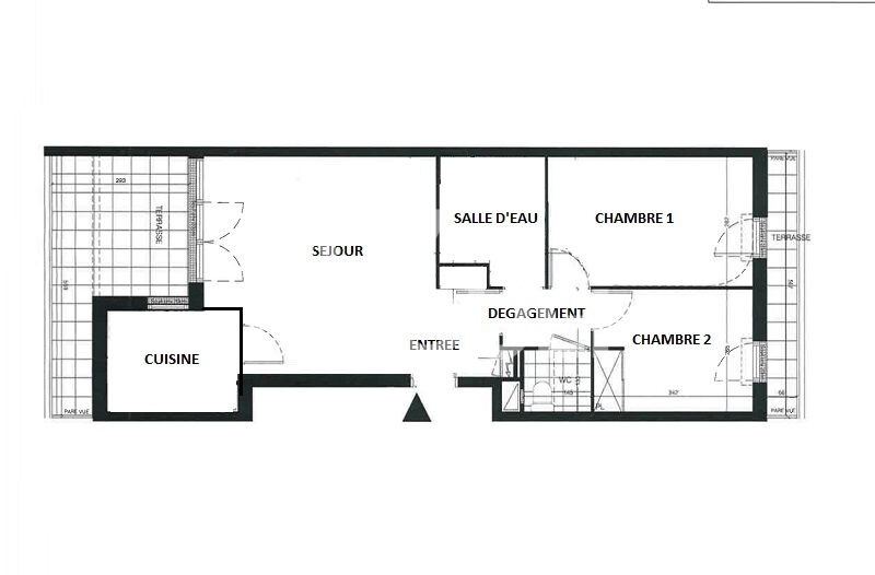
EXCLUSIVITE - IMMEUBLE RECENT (2019) - DERNIER ETAGE - 3 PIECES - 2 CHAMBRES - TERRASSE - VUE DEGAGEE SUR PARIS - RERC - TRAMWAY 8 - PARKING - REF 1242
Dans le coeur vibrant d'Épinay-sur-Seine, se dresse un appartement d'exception, une perle rare... Voir plus
62.6 m²
3 pièce(s)
2 chambre(s)
1 sde
1 parking(s)
Élégant Appartement 3 Pièces à Épinay-sur-Seine - Un Havre de Paix au Dernier Étage
Descriptif
Réf : 1242
EXCLUSIVITE - IMMEUBLE RECENT (2019) - DERNIER ETAGE - 3 PIECES - 2 CHAMBRES - TERRASSE - VUE DEGAGEE SUR PARIS - RERC - TRAMWAY 8 - PARKING - REF 1242
Dans le coeur vibrant d'Épinay-sur-Seine, se dresse un appartement d'exception, une perle rare... Voir plus
62.6 m²
3 pièce(s)
2 chambre(s)
1 sde
1 parking(s)
Fiche technique du bien
Bilan énergétique
Logement extrêmement performant
Logement extrêmement peu performant
passoire énergétique
consommation (énergie primaire)
120
kWh/m².an
émissions (gaz à effet de serre)
24*
kg CO₂/m².an
* Dont émissions de gaz à effet de serre
peu d'émissions de CO₂
émissions de CO₂ très importantes
24
kg CO₂/m².an
Les informations sur les risques auxquels ce bien est exposé sont disponibles sur le site Géorisques : www.georisques.gouv.fr
Simuler votre prêt immobilier avec notre partenaire
Le quartier
Les horaires
Lundi
09h30 - 12h30 / 14h00 - 19h00
Mardi
09h30 - 12h30 / 14h00 - 19h00
Mercredi
09h30 - 12h30 / 14h00 - 19h00
Jeudi
09h30 - 12h30 / 14h00 - 19h00
Vendredi
09h30 - 12h30 / 14h00 - 19h00
Samedi
09h30 - 18h00
Dimanche
Fermé
